Махагони - 109 м2

дом - баня

[характеристики]

Краткая информация о проекте

Двухэтажный дом с баней 109 м² из клееного бруса — комфортное решение для загородной жизни. Просторная терраса для отдыха, уютная кухня-гостиная, большая комната отдыха, спальня, парная и моечная создают атмосферу уюта и расслабления. Экологичность и стиль в одном проекте!
Сроки

  • 1 мес. на подготовку участка и заливку фундамента
  • 1 мес. на сборку домокомплекта
  • 1 мес. установка окон, дверей, освещения и тд.

Материалы

  • Клееный брус
  • Фундаментная плита 200мм
  • Металлочерепица
  • Двухкамерные стеклопакеты

Помещения

  • Спальня
  • Кухня - гостиная
  • Комната отдыха
  • Парная
  • Моечная

Площадь

  • Площадь дома - 109,1 м2
  • Площадь тёплых помещений - 86,87 м2
  • Терраса - 22,23 м2
  • Парная - 11,07 м2

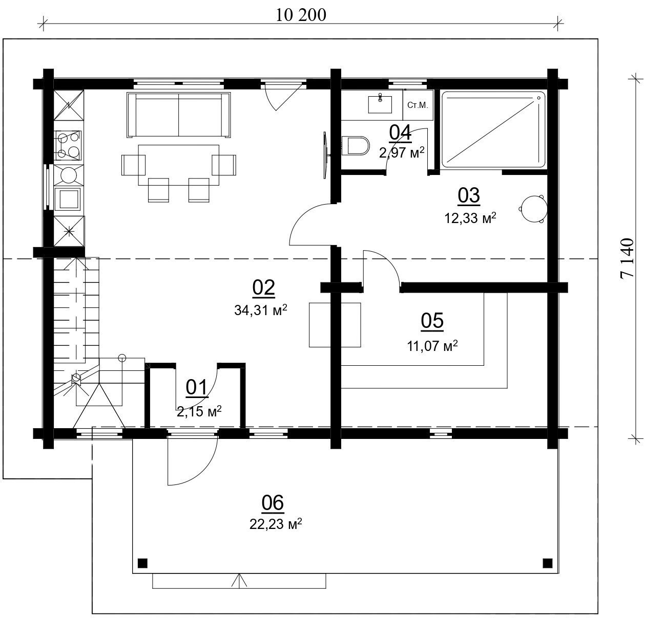
[экспликация помещений]
1 этаж - 85,06 м2
  1. Тамбур - 2,15 м2
  2. Кухня гостиная - 34,31 м2
  3. Моечная - 12,33 м2
  4. Санузел - 2,97 м2
  5. Парная - 11,07 м2
  6. Терраса - 22,23 м2
2 этаж - 24,33 м2
  1. Спальня - 11,41 м2
  2. Холл - 12,92 м2
Стандарт
5 455 000 ₽
8 837 000 ₽
Ширина бруса 160 мм
Фундамент из свайного поля
Кровля из металлочерепицы
Пластиковые окна 70 мм
Двухкамерный стеклопакет
Утепление кровли и пола 200 мм
Электроподготовка*
Внешняя отделка из грунтовки
Ширина бруса 185мм
Фундаментальная плита
Мягкая кровля
Внешняя отделка из грунта с 2 слоями лака
Окна из дерева/алюминия – 78/75 мм
Двухкамерный стеклопакет
Утепление кровли и пола 250 мм
Утепление пола фундаментальной плитой
Электроподготовка*
Внутренняя отделка под ключ
Подготовка внутренних проёмов
Цвет на выбор
Бизнес
Стандарт
5 455 000 ₽
Ширина бруса 160 мм
Фундамент из свайного поля
Кровля из металлочерепицы
Пластиковые окна 70 мм
Двухкамерный стеклопакет
Утепление кровли и пола 200 мм
Электроподготовка*
Внешняя отделка из грунтовки
Бизнес
Ширина бруса 185мм
Фундаментальная плита
Мягкая кровля
Внешняя отделка из грунта
с 2 слоями лака
Окна из дерева/алюминия – 78/75 мм
Остекление двухкамерным
стеклопакетом
Утепление кровли и пола 250 мм
Утепление пола фундаментальной
плитой
Электроподготовка*
Внутренняя отделка под ключ
Подготовка внутренних проёмов
Внешняя входная дверь
8 837 000 ₽
[визуализация]

3d визуализация современной бани

]
[
Оставьте заявку, мы свяжемся с вами в течение 15 минут. Наш специалист проконсультирует вас и предложит решение под ваш запрос.
Не знаете с чего начать? Запишитесь на консультацию