бакаут - 82 м2

дом - баня
[характеристики]

Краткая информация о проекте

Одноэтажный дом-баня, созданный по каркасной технологии, сочетает уют и функциональность. Просторная терраса для отдыха, тёплая кухня-гостиная, где соберётся семья, парная для расслабления и комфортная спальня создают идеальное пространство для жизни и загородного уединения.
Сроки

  • 1 мес. на подготовку участка и заливку фундамента
  • 1 мес. на сборку домокомплекта
  • 1 мес. установка окон, дверей, освещения и тд.

Материалы

  • Каркасная технология
  • Фундаментная плита 200мм
  • Металлочерепица
  • Двухкамерные стеклопакеты

Помещения

  • 1 спальня
  • Кухня - гостиная - столовая
  • Моечная
  • Парная
  • Топочная

Площадь

  • Площадь дома - 82,51 м2
  • Площадь тёплых помещений - 65,66 м2
  • Терраса - 16,85 м2
  • Парная - 9,40 м2

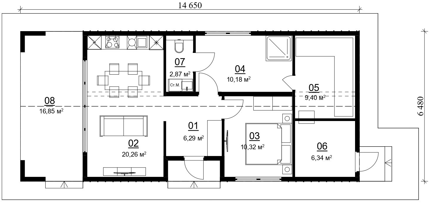
  1. Прихожая - 6,29 м2
  2. Кухня-гостиная-столовая - 20,26 м2
  3. Спальня - 10,32 м2
  4. Моечная - 10,18 м2
  5. Парная - 9,40 м2
  6. Котельная-топочная - 6,34 м2
  7. Санузел - 2,87 м2
  8. Терраса - 16,85 м2
[экспликация помещений]
Площадь - 82,51 м2
Стандарт
3 715 000 ₽
4 540 000 ₽
Ширина стен 310 мм
Фундамент из свайного поля
Кровля из металлочерепицы
Внешняя отделка фиброцементный сайдинг +метал
Пластиковые окна 60 мм
Двухкамерный стеклопакет
Утепление кровли и пола 200 мм
Электроподготовка*
Разводка сантехнических трасс в стенах и перекрытиях
Ширина стен 360 мм
Фундаментальная плита
Мягкая кровля
Внешняя отделка дерево, металл,
фиброцемент премиум
Пластиковые окна 70 мм
Двухкамерный стеклопакет
Утепление кровли 250 мм
Утепление пола фундаментальной плитой
Электроподготовка*
Разводка сантехнических трасс в стенах и перекрытиях
Черновая внутренняя отделка гипсокартоном
Подготовка внутренних проёмов
Бизнес
Стандарт
3 715 000 ₽
Ширина стен 310 мм
Фундамент из свайного поля
Кровля из металлочерепицы
Внешняя отделка фиброцементный сайдинг + металл
Пластиковые окна 60 мм
Двухкамерный стеклопакет
Утепление кровли и пола 200 мм
Электроподготовка*
Разводка сантехнических трасс
в стенах и перекрытиях
Бизнес
Ширина стен 360 мм
Фундаментальная плита
Мягкая кровля
Внешняя отделка дерево, металл,
фиброцемент премиум
Пластиковые окна 70 мм
двухкамерный стеклопакет
Утепление кровли и пола 250 мм
Утепление пола фундаментальной
плитой
Электроподготовка*
Разводка сантехнических трасс в стенах и перекрытиях
Черновая внутренняя отделка гипсокартоном
Подготовка внутренних проёмов
4 540 000 ₽
]
[
Оставьте заявку, мы свяжемся с вами в течение 15 минут. Наш специалист проконсультирует вас и предложит решение под ваш запрос.
Не знаете с чего начать? Запишитесь на консультацию