Амарант - 125,5 м2

дом - баня
[характеристики]

Краткая информация о проекте

Одноэтажный дом-баня по каркасной технологии 125,5 м² — гармоничное сочетание стиля и удобства. Просторная терраса станет местом для отдыха на природе, уютная кухня-гостиная и спальня обеспечат комфорт, а парная и моечная подарят расслабление. Идеально для загородной жизни!
Сроки

  • 1 мес. на подготовку участка и заливку фундамента
  • 1 мес. на сборку домокомплекта
  • 1 мес. установка окон, дверей, освещения и тд.

Материалы

  • Каркасная технология
  • Фундаментная плита 200мм
  • Металлочерепица
  • Двухкамерные стеклопакеты

Помещения

  • Спальня
  • Кухня - гостиная
  • Моечная
  • Парная
  • Топочная

Площадь

  • Площадь дома - 125,57 м2
  • Площадь тёплых помещений - 72 м2
  • Терраса - 53,62 м2
  • Парная - 6,72 м2

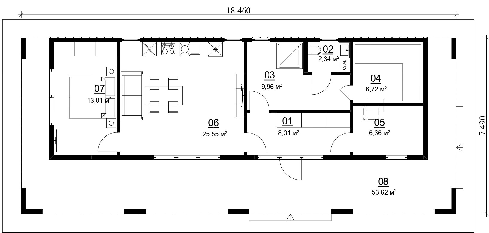
  1. Прихожая - 8,01 м2
  2. Санузел - 2,34 м2
  3. Моечная - 9,96 м2
  4. Парная - 6,72 м2
  5. Котельная-топочная - 6,36 м2
  6. Кухня-гостиная - 25,55 м2
  7. Спальня - 13,01 м2
  8. Терраса - 53,62 м2
[экспликация помещений]
Площадь - 125,57 м2
Стандарт
5 650 000 ₽
6 905 000 ₽
Ширина стен 310 мм
Фундамент из свайного поля
Кровля из металлочерепицы
Внешняя отделка фиброцементный сайдинг +метал
Пластиковые окна 60 мм
Двухкамерный стеклопакет
Утепление кровли и пола 200 мм
Электроподготовка*
Разводка сантехнических трасс в стенах и перекрытиях
Ширина стен 360 мм
Фундаментальная плита
Мягкая кровля
Внешняя отделка дерево, металл,
фиброцемент премиум
Пластиковые окна 70 мм
Двухкамерный стеклопакет
Утепление кровли 250 мм
Утепление пола фундаментальной плитой
Электроподготовка*
Разводка сантехнических трасс в стенах и перекрытиях
Черновая внутренняя отделка гипсокартоном
Подготовка внутренних проёмов
Бизнес
Стандарт
5 650 000 ₽
Ширина стен 310 мм
Фундамент из свайного поля
Кровля из металлочерепицы
Внешняя отделка фиброцементный сайдинг + металл
Пластиковые окна 60 мм
Двухкамерный стеклопакет
Утепление кровли и пола 200 мм
Электроподготовка*
Разводка сантехнических трасс
в стенах и перекрытиях
Бизнес
Ширина стен 360 мм
Фундаментальная плита
Мягкая кровля
Внешняя отделка дерево, металл,
фиброцемент премиум
Пластиковые окна 70 мм
двухкамерный стеклопакет
Утепление кровли и пола 250 мм
Утепление пола фундаментальной
плитой
Электроподготовка*
Разводка сантехнических трасс в стенах и перекрытиях
Черновая внутренняя отделка гипсокартоном
Подготовка внутренних проёмов
6 905 000 ₽
]
[
Оставьте заявку, мы свяжемся с вами в течение 15 минут. Наш специалист проконсультирует вас и предложит решение под ваш запрос.
Не знаете с чего начать? Запишитесь на консультацию